神奈川県横浜市港北区新羽町
倉庫 |坪数:132.15坪
賃料/月:1,000,000円
エリアから物件を探す
賃料(税込) 1,704,000円

お電話でのお問合せ
受付時間 平日8:30〜18:30
0120-100-755
物件コードをお伝え下さい
s1343
WEBからのお問合せ
24時間受付中
賃料(税込)
1,704,000円
坪単価
4,001円
敷金(保証金)
4ヶ月
礼金
1ヶ月
使用開始日
即日
物件所在地
神奈川県寒川町倉見
建物床面積
425.99坪(1,408.23m2)
敷地面積
-
建物面積内訳
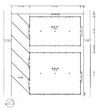
倉庫: 6号250.99坪 7号174.99坪
建物構造
鉄骨造
軒高
5.50m
用途地域
第一種住居地域
前面道路幅員
4.80m
建物階数
平家建
備考
6号・7号
お電話でのお問合せ
受付時間 平日8:30〜18:30
0120-100-755
物件コードをお伝え下さい
k60
WEBからのお問合せ
24時間受付中
物件コードk60をお伝え下さい。
0120-100-755
【受付時間】8:30〜18:30(土日祝日を除く)
お電話でのお問合せ
受付時間 平日8:30〜18:30
0120-100-755
物件コードをお伝え下さい
k60
WEBからのお問合せ
24時間受付中
神奈川県横浜市港北区新羽町
倉庫 |坪数:132.15坪
賃料/月:1,000,000円
神奈川県海老名市下今泉1丁目
倉庫 |坪数:127.01坪
賃料/月:550,000円
神奈川県川崎市川崎区鋼管通5丁目
倉庫 |坪数:102.70坪
賃料/月:1,600,000円
神奈川県綾瀬市大上5丁目
倉庫 |坪数:173.99坪
賃料/月:768,728円
神奈川県藤沢市遠藤
倉庫 |坪数:121.24坪
賃料/月:555,556円
神奈川県大和市深見東1丁目
倉庫 |坪数:250.07坪
賃料/月:1,050,000円
神奈川県横浜市泉区和泉中央南5丁目
倉庫 |坪数:149.73坪
賃料/月:1,200,000円
神奈川県相模原市緑区橋本台1丁目
倉庫 |坪数:385.99坪
賃料/月:1,621,182円