千葉県成田市多良貝
倉庫 |坪数:784.23坪
賃料/月:2,400,000円
エリアから物件を探す
賃料(税込) 2,000,000円

お電話でのお問合せ
受付時間 平日8:30〜18:30
0120-100-755
物件コードをお伝え下さい
s1343
WEBからのお問合せ
24時間受付中
賃料(税込)
2,000,000円
坪単価
3,061円
敷金(保証金)
3ヶ月
礼金
1ヶ月
使用開始日
即日
物件所在地
千葉県柏市十余二
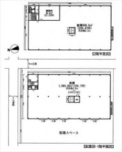
建物床面積
653.40坪(2,160.00m2)
敷地面積
636.46坪(2,104.00m2)
建物面積内訳
倉庫: 1階326.7坪、2階299.47坪 事務所:27.23坪
建物構造
鉄骨造
軒高
-
用途地域
工業地域
前面道路幅員
5.00m
建物階数
2階建
備考
トイレ エレベーター
お電話でのお問合せ
受付時間 平日8:30〜18:30
0120-100-755
物件コードをお伝え下さい
c355
WEBからのお問合せ
24時間受付中
物件コードc355をお伝え下さい。
0120-100-755
【受付時間】8:30〜18:30(土日祝日を除く)
お電話でのお問合せ
受付時間 平日8:30〜18:30
0120-100-755
物件コードをお伝え下さい
c355
WEBからのお問合せ
24時間受付中
千葉県成田市多良貝
倉庫 |坪数:784.23坪
賃料/月:2,400,000円
千葉県茂原市早野
倉庫 |坪数:192.65坪
賃料/月:577,963円
千葉県市川市本行徳
倉庫 |坪数:129.99坪
賃料/月:780,000円
千葉県八街市山田台
倉庫 |坪数:1705.52坪
賃料/月:4,263,819円
千葉県習志野市芝園2丁目
倉庫 |坪数:1180.69坪
賃料/月:5,800,000円
千葉県市原市白塚
倉庫 |坪数:242.47坪
賃料/月:450,000円
千葉県柏市大青田
倉庫 |坪数:450.00坪
賃料/月:1,620,000円
千葉県市川市塩浜2丁目
倉庫 |坪数:212.67坪
賃料/月:1,400,000円