埼玉県所沢市中富
倉庫 |坪数:263.72坪
賃料/月:1,100,000円
エリアから物件を探す
賃料(税込) 1,000,000円

お電話でのお問合せ
受付時間 平日8:30〜18:30
0120-100-755
物件コードをお伝え下さい
s1343
WEBからのお問合せ
24時間受付中
賃料(税込)
1,000,000円
坪単価
5,009円
敷金(保証金)
8ヶ月
礼金
2ヶ月
使用開始日
相談
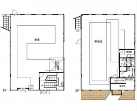
物件所在地
埼玉県さいたま市見沼区東大宮6丁目
建物床面積
199.65坪(660.00m2)
敷地面積
-
建物面積内訳
倉庫: 199.65坪
建物構造
鉄骨造
軒高
-
用途地域
-
前面道路幅員
-
建物階数
2階建
備考
-
お電話でのお問合せ
受付時間 平日8:30〜18:30
0120-100-755
物件コードをお伝え下さい
s66
WEBからのお問合せ
24時間受付中
物件コードs66をお伝え下さい。
0120-100-755
【受付時間】8:30〜18:30(土日祝日を除く)
お電話でのお問合せ
受付時間 平日8:30〜18:30
0120-100-755
物件コードをお伝え下さい
s66
WEBからのお問合せ
24時間受付中
埼玉県所沢市中富
倉庫 |坪数:263.72坪
賃料/月:1,100,000円
埼玉県八潮市南川崎
倉庫 |坪数:87.04坪
賃料/月:276,946円
埼玉県川越市新宿町3丁目
倉庫 |坪数:212.18坪
賃料/月:450,000円
埼玉県志木市1丁目
倉庫 |坪数:209.99坪
賃料/月:630,000円
埼玉県入間市上谷ケ貫
倉庫 |坪数:231.41坪
賃料/月:650,000円
埼玉県松伏町大川戸
倉庫 |坪数:214.00坪
賃料/月:856,000円
埼玉県新座市野火止3丁目
倉庫 |坪数:390.07坪
賃料/月:1,637,963円
埼玉県入間市上小谷田3丁目
倉庫 |坪数:174.36坪
賃料/月:400,000円