東京都瑞穂町箱根ヶ崎
倉庫 |坪数:342.02坪
賃料/月:1,316,700円
エリアから物件を探す
賃料(税込) 1,000,000円

お電話でのお問合せ
受付時間 平日8:30〜18:30
0120-100-755
物件コードをお伝え下さい
s1343
WEBからのお問合せ
24時間受付中
賃料(税込)
1,000,000円
坪単価
8,548円
敷金(保証金)
5ヶ月
礼金
1ヶ月
使用開始日
相談
物件所在地
東京都大田区西糀谷3丁目
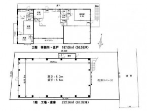
建物床面積
117.00坪(386.78m2)
敷地面積
123.91坪(409.62m2)
建物面積内訳
-
建物構造
鉄骨造
軒高
5.40m
用途地域
準工業地域
前面道路幅員
5.30m
建物階数
2階建
備考
トイレ 事務所付
お電話でのお問合せ
受付時間 平日8:30〜18:30
0120-100-755
物件コードをお伝え下さい
t677
WEBからのお問合せ
24時間受付中
物件コードt677をお伝え下さい。
0120-100-755
【受付時間】8:30〜18:30(土日祝日を除く)
お電話でのお問合せ
受付時間 平日8:30〜18:30
0120-100-755
物件コードをお伝え下さい
t677
WEBからのお問合せ
24時間受付中
東京都瑞穂町箱根ヶ崎
倉庫 |坪数:342.02坪
賃料/月:1,316,700円
東京都荒川区荒川7丁目
倉庫 |坪数:193.20坪
賃料/月:1,350,000円
東京都荒川区南千住3丁目
倉庫 |坪数:251.55坪
賃料/月:1,850,000円
東京都足立区西新井7丁目
倉庫 |坪数:71.65坪
賃料/月:850,000円
東京都武蔵村山市中原2丁目
倉庫 |坪数:126.77坪
賃料/月:418,182円
東京都足立区小台2丁目
倉庫 |坪数:134.74坪
賃料/月:750,000円
東京都東村山市恩多町5丁目
倉庫 |坪数:432.99坪
賃料/月:1,800,000円
東京都町田市南成瀬6丁目
倉庫 |坪数:99.80坪
賃料/月:750,000円